Images
Description
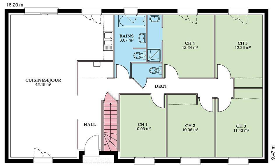
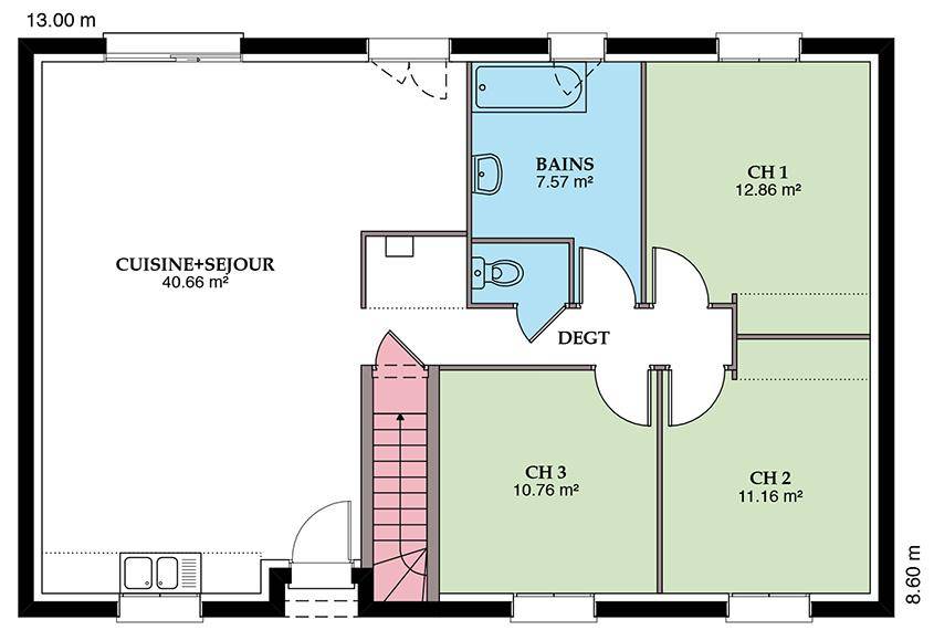
Maison Aubetière – 109 m² de confort moderne
Découvrez l’Aubetière, une maison neuve de 109 m² alliant élégance et performance énergétique. Conforme à la norme RE2020, elle offre un confort durable et une consommation maîtrisée.
Proposée en toit 2 pans ou 4 pans, l’Aubetière s’adapte à tous les styles et s’intègre harmonieusement à son environnement. À l’intérieur, vous profitez d’un espace lumineux avec 4 chambres et un grand séjour ouvert, pensé pour la vie de famille.
Grâce à son isolation performante et ses matériaux écoresponsables, cette maison basse consommation conjugue style, économie et durabilité. L’Aubetière, c’est le choix d’une maison moderne où bien-être et éco-responsabilité vont de pair.
Logement susceptibles de vous intéresser
Nous vous proposons de découvrir aussi cette sélection de logements situés à moins de 10km de Bourges et qui seraient susceptibles de vous intéresser.
La Chapelle-Saint-Ursin
TERRAIN ET MAISONDécouvrez la Prunière, une maison neuve de 87,5 m² avec garage intégré, qui marie style moderne et confort au quotidien. Disponible en toit 2 ou 4 pans, elle séduit par son architecture élégante et son agencement fonctionnel, idéal pour un couple ou une jeune famille.L’intérieur se compose de 3 chambres lumineuses, d’un espace de vie ouvert et convivial, et d’un garage accolé offrant un rangement pratique et un accès direct à la maison. Chaque espace a été pensé pour offrir volume, clarté et bien-être.Conforme à la réglementation RE2020, la Prunière bénéficie d’une isolation performante, d’une consommation énergétique réduite et d’un confort thermique optimal tout au long de l’année.La Prunière 87,5 m² + garage, c’est le choix d’une maison moderne, économe et durable, pensée pour un mode de vie simple, serein et tourné vers l’avenir.
La Chapelle-Saint-Ursin
TERRAINNous vous présentons un terrain exceptionnel de 340 m² situé à La Chapelle-Saint-Ursin, une ville dynamique à taille humaine dans le département du Cher, en région Centre-Val de Loire. Ce terrain non-viabilisé offre une opportunité unique pour réaliser votre projet de construction de maison. Profitez d’un cadre de vie agréable et d’un environnement propice à l’épanouissement familial. Son exposition et sa configuration en font un lieu idéal pour concevoir votre futur cocon. La Chapelle-Saint-Ursin saura séduire ses habitants par son charme et ses commodités. Idéalement située, cette ville bénéficie d’attractions locales telles que des commerces, des écoles, et des espaces verts propices aux activités en plein air. Le cœur de ville invite à la convivialité, renforçant le sentiment de communauté. De plus, la proximité avec les grands axes favorise un accès rapide aux villes environnantes, rendant ce terrain d’autant plus attrayant pour les familles et les professionnels en quête de tranquillité sans renoncer à la vie urbaine. Ne manquez pas l’opportunité de concevoir la maison de vos rêves sur ce terrain offrant un potentiel incroyable. Contactez-nous rapidement pour en savoir plus sur cette opportunité d’achat unique. À noter qu’en tant que constructeur, nous ne sommes pas mandatés pour réaliser la vente de ce terrain.
Bourges
TERRAIN ET MAISONBourges : maison de 4 pièces (120 m²) en venteIdéalement située – À Bourges (18000), maison neuve à vendre de 4 pièces, 120 m² et 600 m² de terrain. Conçue de plain-pied, elle propose trois chambres, une cuisine et deux salles de bains.À proximité : gares (Bourges, Saint-Germain-du-Puy et Marmagne), établissements scolaires, crèche, INSA Centre Val de Loire, commerces, boulangeries, supermarchés, boucheries-charcuteries et bureau de poste. Marché Place des Marronniers le jeudi matin. Autoroute A71 et nationales N142 et N151 à 7 km.Le prix de vente de cette maison de 4 pièces est de 236 900 €.Contactez Jonathan LEBLANC (tél : (Numéro supprimé)) pour tout renseignement sur la maison de plain-pied, sur les modalités de vente ou sur les démarches à suivre.
Bourges
TERRAIN ET MAISONVENTE : maison T2 (70 m²) à BourgesIdéalement située – À découvrir à Bourges (18000) : maison neuve 2 pièces à vendre. Surface de 70 m² sur 600 m² de terrain. Conçue de plain-pied, elle dispose de deux chambres, d’une cuisine et d’une salle de bains.Proche gares (Bourges, Saint-Germain-du-Puy et Marmagne), établissements scolaires, crèche, INSA Centre Val de Loire, commerces, boulangeries, supermarchés, poissonneries et bureau de poste. Marché Place des Marronniers le jeudi matin. Autoroute A71 et nationales N142 et N151 accessibles à 7 km.Cette maison de 2 pièces est à vendre pour la somme de 178 400 €.Contactez notre agence (Jonathan LEBLANC : (Numéro supprimé)) pour toute question sur la maison, sur les modalités de vente ou sur les démarches à suivre. Maisons Bruno Petit MJB Bourges vous accompagne dans tous vos projets immobiliers et dans toutes vos démarches.
Bourges
TERRAIN ET MAISONVENTE : maison T2 (100 m²) à BourgesIdéalement située – À Bourges (18000), maison neuve à vendre de 2 pièces, 100 m² de surface sur 600 m² de terrain. Elle propose deux chambres, une cuisine et deux salles de bains.À proximité : gares (Bourges, Saint-Germain-du-Puy et Marmagne), établissements scolaires, crèche, INSA Centre Val de Loire, commerces, boulangeries, supermarchés, épiceries et poissonneries. Marché Place des Marronniers le jeudi matin. Autoroute A71 et nationales N142 et N151 accessibles à 7 km.Le prix de vente de cette maison de 2 pièces est de 225 700 €.Contactez Jonathan LEBLANC ((Numéro supprimé)) pour tout renseignement sur la maison ou sur les démarches à suivre.
Bourges
TERRAINBourges : terrain de 600 m² en venteIdéalement situé – Projetez-vous sur ce terrain de 600 m² à vendre à Bourges (18000).Proche gares (Bourges, Saint-Germain-du-Puy et Marmagne), établissements scolaires, crèche, INSA Centre Val de Loire, commerces, boulangeries, supermarchés, poissonneries et boucheries-charcuteries. Marché Place des Marronniers le jeudi matin. Accès autoroute A71 et nationales N142 et N151 à 7 km.Il est proposé à l’achat pour 50 000 €. N’hésitez pas à prendre contact avec notre agence (Jonathan LEBLANC : (Numéro supprimé)) pour tout renseignement sur le terrain. Maisons Bruno Petit MJB Bourges vous accompagne à toutes les étapes de votre projet et dans tous vos projets immobiliers.
Fussy
TERRAIN ET MAISONFussy : maison de 3 pièces (120 m²) à vendreIdéalement située – À Fussy (18110), maison neuve en vente de 3 pièces, 120 m² de surface sur 1 160 m² de terrain. Conçue de plain-pied, elle offre trois chambres, une cuisine et deux salles de bains.À dix minutes : gares (Bourges et Saint-Germain-du-Puy), École Primaire Maxime Duruthin, bibliothèque, tennis, commerce, boulangerie, épicerie, poissonnerie et bureau de poste. Nationale N142 à 9 km. Bourges à 8 km.Cette maison de 3 pièces est proposée à l’achat pour 236 800 €.Contactez Jonathan LEBLANC ((Numéro supprimé)) pour obtenir de plus amples informations sur la maison de plain-pied. Donnez vie à vos projets immobiliers avec Maisons Bruno Petit MJB Bourges.
Fussy
TERRAIN ET MAISONFussy : maison de 2 pièces (60 m²) à vendreIdéalement située – À Fussy (18110), maison neuve en vente de 2 pièces, 60 m² sur 1 160 m² de terrain. Conçue de plain-pied, elle offre deux chambres, une cuisine et une salle de bains.À dix minutes : gares (Bourges et Saint-Germain-du-Puy), École Primaire Maxime Duruthin, bibliothèque, tennis, commerce, boulangerie, épicerie, bureau de poste et poissonnerie. Accès nationale N142 à 9 km. Bourges à 8 km.Le prix de vente de cette maison de 2 pièces est de 178 300 €.Contactez Jonathan LEBLANC ((Numéro supprimé)) pour toute question sur la maison de plain-pied. Maisons Bruno Petit MJB Bourges est là pour vous accompagner dans toutes vos démarches.
Fussy
TERRAIN ET MAISONVENTE : maison de 3 pièces (90 m²) à FussyIdéalement située – À découvrir à Fussy (18110) : maison neuve 3 pièces à vendre. Surface de 90 m² sur 1 160 m² de terrain. Son intérieur est composé de deux chambres, d’une cuisine et de deux salles de bains.Proche gares (Bourges et Saint-Germain-du-Puy), École Primaire Maxime Duruthin, bibliothèque, tennis, commerce, boulangerie, poissonnerie, épicerie et bureau de poste. Nationale N142 à 9 km. Bourges à 8 km.Cette maison de 3 pièces est à vendre pour la somme de 239 700 €.Prenez contact avec Jonathan LEBLANC ((Numéro supprimé)) pour tout renseignement sur la maison, sur les modalités de vente ou sur les démarches à suivre. Maisons Bruno Petit MJB Bourges vous accompagne dans tous vos projets immobiliers et à toutes les étapes de votre projet.
L’actualité immobilière à Bourges
27/11/2023
02/11/2023
30/10/2023
20/10/2023
16/10/2023
16/10/2023