Maison à construire à Landivisiau (29400)
Images
Description
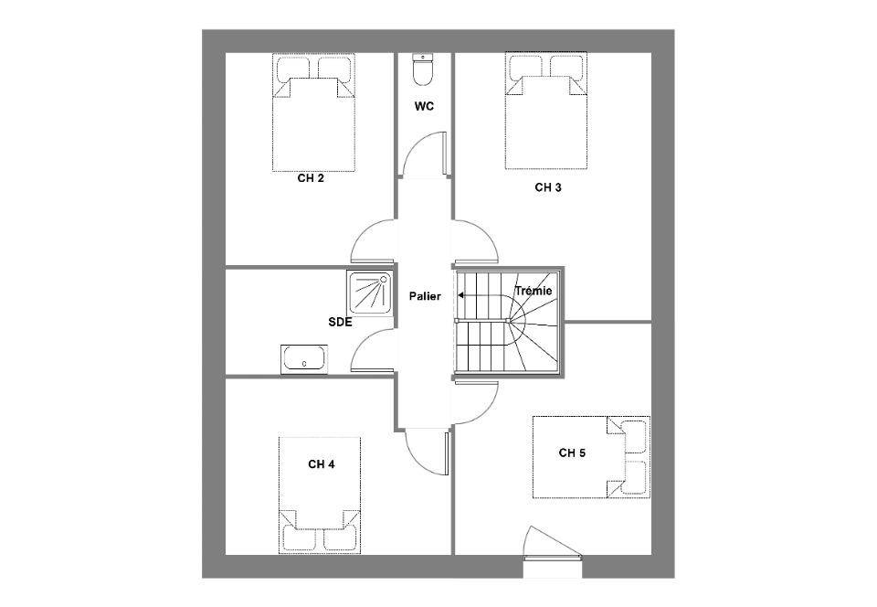
VENTE : maison de 6 pièces (148 m²) à Landivisiau
Cette belle maison traditionnelle aux lignes contemporaines offre 154m² habitable . Au rez-de-chaussée, elle dispose d'une belle pièce de vie offrant un maximum de lumière, d'une grande suite parentale avec sa salle d'eau, d'un wc, d'un très grand cellier et son garage.
A l'étage on retrouve 4 chambres et une salle de bain. L'orientation de cette maison vous permettra de bénéficier d'un maximum de lumière et de chaleur naturelle pour davantage d'économies et de douceur de vivre.
Aux normes RE2020, peu énergivore, elle vous ravira par son confort de vie.
Elle est proposée à l'achat pour 446 500 €.
Prenez contact avec Aurélie CAGNARD (tél : (Numéro supprimé)) pour toute information sur la maison. Maisons de l'Avenir Guipavas est là pour vous accompagner à toutes les étapes de l'achat.
Logement susceptibles de vous intéresser
Nous vous proposons de découvrir aussi cette sélection de logements situés à moins de 10km de Landivisiau et qui seraient susceptibles de vous intéresser.
Bodilis
TERRAINDEVENEZ PROPRIÉTAIRE D’UN TERRAIN À BODILIS !Installez-vous dans un cadre de vie calme et verdoyant à Bodilis, charmante commune du Nord-Finistère, idéalement située à proximité de Landivisiau et de Morlaix.Profitez d’un environnement paisible et agréable, tout en restant proche des commerces, écoles et services – l’endroit idéal pour concrétiser votre projet de construction ! Votre terrain comprend 😮 Une surface de 824 m², bien orientéeo Libre de constructeur, pour bâtir la maison de vos rêves Les atouts du projet 😮 Terrain viabilisé ou à proximité des réseauxo Cadre de vie recherché, proche des commodités et de la campagneo Plan de maison personnalisable selon vos besoins et envies Prix indiqué hors frais Photos non contractuelles, à titre d’illustration Accession possible avec ou sans apportNe laissez pas passer cette opportunité rare de devenir propriétaire d’un terrain à Bodilis, et de réaliser votre maison sur mesure dans un cadre de vie agréable et bien situé ! Contactez-nous dès maintenant pour plus d’informations et pour étudier votre projet.
Plougar
TERRAIN ET MAISONPlougar : maison T6 (119 m²) à vendreLe terrain de la propriété s’étend sur 788 m².Cette belle maison traditionnelle aux lignes contemporaines offre 119m² habitable . Au rez-de-chaussée, elle dispose d’une belle pièce de vie offrant un maximum de lumière, d’une suite parentale avec sa salle d’eau, d’un wc et son garage. A l’étage on retrouve 4 chambres, une salle de bains, et un WC. L’orientation de cette maison vous permettra de bénéficier d’un maximum de lumière et de chaleur naturelle pour davantage d’économies et de douceur de vivre.Elle est proposée à l’achat pour 308 241 €.Contactez Aurélie CAGNARD ((Numéro supprimé)) pour toute information sur cette maison, sur les modalités de vente ou sur les démarches à suivre. Maisons de l’Avenir Guipavas est là pour vous accompagner dans tous vos projets immobiliers.
Plougar
TERRAIN ET MAISONPlougar : maison F5 (140 m²) en venteCette belle maison traditionnelle aux lignes contemporaines offre 140 m² habitable . Au rez-de-chaussée, elle dispose d’une belle pièce de vie offrant un maximum de lumière, d’une grande suite parentale avec sa salle d’eau, d’un wc et d’un très grand cellier. A l’étage on retrouve 3 chambres, une salle de bains, et un WC. L’orientation de cette maison vous permettra de bénéficier d’un maximum de lumière et de chaleur naturelle pour davantage d’économies et de douceur de vivreElle est proposée à l’achat pour 378 500 €.Contactez Aurélie CAGNARD (tél : (Numéro supprimé)) pour tout renseignement sur la maison, sur les modalités de vente ou sur les démarches à suivre. Maisons de l’Avenir Guipavas vous accompagne dans tous vos projets immobiliers et dans toutes vos démarches.
Plougar
TERRAIN ET MAISONVENTE d’une maison de 7 pièces (104 m²) à PlougarNouveau Murs Ossature BoisCette belle maison traditionnelle aux lignes contemporaines offre 104m² habitable . Elle dispose d’une suite parentale avec sa salle d’eau, d’une belle pièce de vie offrant un maximum de lumière et d’un cellier.A l’étage vous disposerez 4 chambres et une salle de bains.L’orientation de cette maison vous permettra de bénéficier d’un maximum de lumière et de chaleur naturelle pour davantage d’économies et de douceur de vivre.Aux normes RE2020, peu énergivore, elle vous ravira par son confort de vie.Son prix de vente est de 270 641 €.Contactez Aurélie CAGNARD ((Numéro supprimé)) pour plus de renseignements sur la maison, sur les démarches à suivre et sur les modalités de vente. Maisons de l’Avenir Guipavas est là pour vous accompagner à toutes les étapes de votre projet.
Guiclan
TERRAINVENTE d’un terrain de 1 384 m² à GuiclanÀ Guiclan (29410), imaginez la maison de vos rêves sur ce terrain de 1 384 m². Il est à vendre pour la somme de 49 500 €. Prenez contact avec notre agence (Aurélie CAGNARD : (Numéro supprimé)) pour plus d’informations sur ce terrain, sur les modalités de vente et sur les démarches à suivre.
Guiclan
TERRAIN ET MAISONGuiclan : maison T6 (183 m²) à vendre1 384 m² de terrain à Guiclan (29410).Cette belle maison traditionnelle aux lignes contemporaines offre 183m² habitable . Au rez-de-chaussée, elle dispose d’une belle pièce de vie offrant un maximum de lumière, d’une grande suite parentale avec sa salle d’eau, d’un wc, d’un cellier et d’une buanderie.A l’étage on retrouve 3 chambres et une salle de bain. L’orientation de cette maison vous permettra de bénéficier d’un maximum de lumière et de chaleur naturelle pour davantage d’économies et de douceur de vivre.Aux normes RE2020, peu énergivore, elle vous ravira par son confort de vie.Elle est à vendre pour la somme de 467 100 €.Contactez notre agence (CAGNARD Aurélie : (Numéro supprimé)) pour obtenir de plus amples informations sur la maison. Maisons de l’Avenir Guipavas est là pour vous accompagner dans toutes vos démarches.
Guiclan
TERRAIN ET MAISONGuiclan : maison de 4 pièces (114 m²) à vendreCette belle maison traditionnelle aux lignes contemporaines offre 114m² habitable . Au rez-de-chaussée, elle dispose d’une belle pièce de vie offrant un maximum de lumière, d’un wc, un cellier et d’un garage. A l’étage on retrouve 3 chambres, 2 salles d’eau, un WC un bureau et un grand vide sur séjour. L’orientation de cette maison vous permettra de bénéficier d’un maximum de lumière et de chaleur naturelle pour davantage d’économies et de douceur de vivre.Son prix de vente est de 315 300 €.N’hésitez pas à prendre contact avec notre agence (Aurélie CAGNARD : (Numéro supprimé)) pour plus de renseignements sur la maison, sur les modalités de vente ou sur les démarches à suivre. Maisons de l’Avenir Guipavas vous accompagne à toutes les étapes de l’achat et dans tous vos projets immobiliers.
Guiclan
TERRAIN ET MAISONVENTE d’une maison T5 (90 m²) à GuiclanCe très beau plain-pied aux lignes traditionnelles, de 90m² agencé astucieusement pour un maximum de luminosité, pièce de vie ouverte et volumineuse, 4 chambres, salle de bain, wc et son garage.Aux normes RE2020, peu énergivore, elle vous ravira par son confort de vie Son prix de vente est de 262 500 €.Contactez notre agence (CAGNARD Aurélie : (Numéro supprimé)) pour obtenir de plus amples informations sur cette maison. Concrétisez vos projets immobiliers avec Maisons de l’Avenir Guipavas.
Guiclan
TERRAIN ET MAISONVENTE : maison F5 (104 m²) à GuiclanNouveau Murs Ossature BoisCette belle maison traditionnelle aux lignes contemporaines offre 104m² habitable . Elle dispose d’une belle pièce de vie offrant un maximum de lumière, 4 chambres, une salle de bains, un WC, ainsi qu’un cellier et un garage. L’orientation de cette maison vous permettra de bénéficier d’un maximum de lumière et de chaleur naturelle pour davantage d’économies et de douceur de vivre.Elle est proposée à l’achat pour 292 300 €.Contactez Aurélie CAGNARD (tél : (Numéro supprimé)) pour obtenir de plus amples renseignements sur la maison ou sur les modalités de vente.
L’actualité immobilière à Landivisiau
27/11/2023
02/11/2023
30/10/2023
20/10/2023
16/10/2023
16/10/2023