Maison à construire à Saint-Méen (29260)
Images
Description
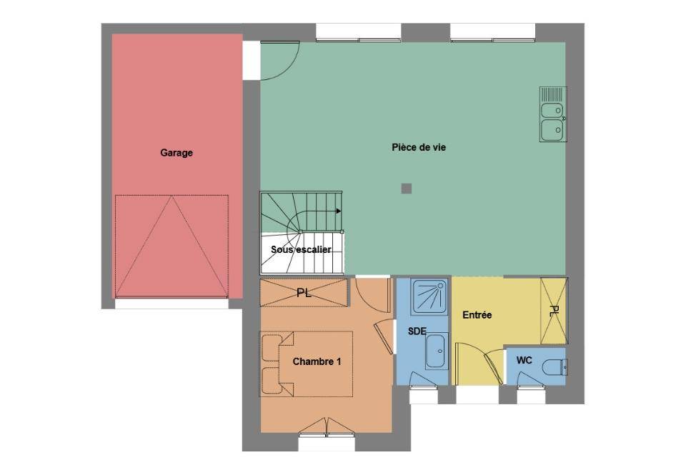
Maison F5 (89 m²) à vendre à Saint-Méen
Cette belle maison traditionnelle aux lignes contemporaines offre 90m² habitable .
Au rez-de-chaussée, elle dispose d'une belle pièce de vie offrant un maximum de lumière, d'une suite parentale avec sa salle d'eau, d'un wc et son garage.
A l'étage on retrouve 3 chambres, une salle de bains, et un WC.
L'orientation de cette maison vous permettra de bénéficier d'un maximum de luminosité.
Elle est à vendre pour la somme de 300 800 €.
Contactez notre agence (Aurélie CAGNARD : (Numéro supprimé)) pour tout renseignement sur la maison, sur les démarches à suivre ou sur les modalités de vente.
Logement susceptibles de vous intéresser
Nous vous proposons de découvrir aussi cette sélection de logements situés à moins de 10km de Saint-Méen et qui seraient susceptibles de vous intéresser.
Saint-Thonan
TERRAIN ET MAISONDEVENEZ PROPRIÉTAIRE À SAINT-THONAN – MAISON NEUVE RE2020 SUR-MESURE !Vivez dans un cadre de vie privilégié à Saint-Thonan, charmante commune du Finistère, tout en restant proche des commerces, écoles et services – idéal pour votre famille ! Votre future maison comprend 😮 3 chambres spacieuses et lumineuseso Un grand salon-séjour traversant, ouvert sur le jardino Une cuisine moderne et fonctionnelleo Salle de bain et WC séparéso Le tout sur un terrain bien orienté Les atouts du projet 😮 Maison neuve RE2020, à faible consommation d’énergieo Plan personnalisable selon vos besoinso Cadre de vie paisible, proche des commodités et du littoralo Prestations de qualité, finitions soignées Prix indiqué hors frais Photos non contractuelles à titre d’illustration Accession à la propriété possible avec ou sans apportNe manquez pas cette belle opportunité de devenir propriétaire d’une maison neuve moderne et économique à Saint-Thonan ! Contactez-nous dès maintenant pour découvrir les plans et étudier votre projet personnalisé.
Le Drennec
TERRAINDEVENEZ PROPRIÉTAIRE D’UN TERRAIN AU DRENNEC !Installez-vous dans un cadre de vie calme et verdoyant au Drennec, charmante commune du Nord-Finistère, idéalement située à proximité de Brest et du littoral.Profitez d’un environnement paisible et résidentiel, tout en restant proche des commerces, écoles et services – le lieu parfait pour concrétiser votre projet de construction ! Votre terrain comprend 😮 Une surface de 418 m², bien orientéeo Libre de constructeur, pour bâtir la maison de vos rêves Les atouts du projet 😮 Terrain viabilisé ou proche des réseauxo Cadre de vie agréable, proche de Brest et du littoral nordo Plan de maison personnalisable selon vos besoins et vos envies Prix indiqué hors frais Photos non contractuelles, à titre d’illustration Accession possible avec ou sans apportNe manquez pas cette opportunité rare de devenir propriétaire d’un terrain au Drennec, et de réaliser votre maison sur mesure dans un cadre de vie agréable et recherché ! Contactez-nous dès maintenant pour plus d’informations et pour étudier ensemble votre projet.
Ploudaniel
TERRAINDEVENEZ PROPRIÉTAIRE D’UN TERRAIN À PLOUDANIEL !Vivez dans un cadre de vie paisible et convivial à Ploudaniel, charmante commune du Nord-Finistère, idéalement située entre Landerneau et Lesneven.Profitez d’un environnement verdoyant et calme, tout en restant proche des commerces, écoles et services – l’endroit parfait pour réaliser votre projet de construction ! Votre terrain comprend 😮 Une surface de 860 m², bien orientée et agréable à aménagero Libre de constructeur, pour concevoir la maison qui vous ressemble Les atouts du projet 😮 Terrain viabilisé ou à proximité des réseauxo Cadre de vie tranquille, à seulement quelques minutes de Landerneau et de la voie expresso Plan personnalisable, selon vos envies et vos besoins Prix indiqué hors frais Photos non contractuelles, à titre d’illustration Accession possible avec ou sans apportNe manquez pas cette belle opportunité de devenir propriétaire d’un terrain à Ploudaniel, et de construire votre maison sur mesure dans un environnement agréable et bien situé ! Contactez-nous dès maintenant pour plus d’informations et pour étudier ensemble votre projet.
Saint-Thonan
TERRAINDEVENEZ PROPRIÉTAIRE D’UN TERRAIN À SAINT-THONAN !Vivez dans un cadre de vie agréable et dynamique à Saint-Thonan, charmante commune du Nord-Finistère, idéalement située entre Landerneau et Brest.Profitez d’un environnement calme et verdoyant, tout en restant proche des commerces, écoles et services – un lieu idéal pour concrétiser votre projet de construction ! Votre terrain comprend 😮 Une surface de 400 m², bien orientéeo Libre de constructeur, pour bâtir la maison qui vous correspond Les atouts du projet 😮 Terrain viabilisé ou à proximité immédiate des réseauxo Emplacement stratégique, à quelques minutes de Brest et de Landerneauo Plan personnalisable selon vos besoins et votre mode de vie Prix indiqué hors frais Photos non contractuelles, à titre d’illustration Accession possible avec ou sans apportNe manquez pas cette opportunité rare de devenir propriétaire d’un terrain à Saint-Thonan, et de réaliser votre maison sur mesure dans un environnement paisible et bien situé ! Contactez-nous dès maintenant pour plus d’informations et pour étudier ensemble votre projet.
Plougar
TERRAIN ET MAISONPlougar : maison T6 (119 m²) à vendreLe terrain de la propriété s’étend sur 788 m².Cette belle maison traditionnelle aux lignes contemporaines offre 119m² habitable . Au rez-de-chaussée, elle dispose d’une belle pièce de vie offrant un maximum de lumière, d’une suite parentale avec sa salle d’eau, d’un wc et son garage. A l’étage on retrouve 4 chambres, une salle de bains, et un WC. L’orientation de cette maison vous permettra de bénéficier d’un maximum de lumière et de chaleur naturelle pour davantage d’économies et de douceur de vivre.Elle est proposée à l’achat pour 308 241 €.Contactez Aurélie CAGNARD ((Numéro supprimé)) pour toute information sur cette maison, sur les modalités de vente ou sur les démarches à suivre. Maisons de l’Avenir Guipavas est là pour vous accompagner dans tous vos projets immobiliers.
Plougar
TERRAIN ET MAISONPlougar : maison F5 (140 m²) en venteCette belle maison traditionnelle aux lignes contemporaines offre 140 m² habitable . Au rez-de-chaussée, elle dispose d’une belle pièce de vie offrant un maximum de lumière, d’une grande suite parentale avec sa salle d’eau, d’un wc et d’un très grand cellier. A l’étage on retrouve 3 chambres, une salle de bains, et un WC. L’orientation de cette maison vous permettra de bénéficier d’un maximum de lumière et de chaleur naturelle pour davantage d’économies et de douceur de vivreElle est proposée à l’achat pour 378 500 €.Contactez Aurélie CAGNARD (tél : (Numéro supprimé)) pour tout renseignement sur la maison, sur les modalités de vente ou sur les démarches à suivre. Maisons de l’Avenir Guipavas vous accompagne dans tous vos projets immobiliers et dans toutes vos démarches.
Plougar
TERRAIN ET MAISONVENTE d’une maison de 7 pièces (104 m²) à PlougarNouveau Murs Ossature BoisCette belle maison traditionnelle aux lignes contemporaines offre 104m² habitable . Elle dispose d’une suite parentale avec sa salle d’eau, d’une belle pièce de vie offrant un maximum de lumière et d’un cellier.A l’étage vous disposerez 4 chambres et une salle de bains.L’orientation de cette maison vous permettra de bénéficier d’un maximum de lumière et de chaleur naturelle pour davantage d’économies et de douceur de vivre.Aux normes RE2020, peu énergivore, elle vous ravira par son confort de vie.Son prix de vente est de 270 641 €.Contactez Aurélie CAGNARD ((Numéro supprimé)) pour plus de renseignements sur la maison, sur les démarches à suivre et sur les modalités de vente. Maisons de l’Avenir Guipavas est là pour vous accompagner à toutes les étapes de votre projet.
Lanhouarneau
TERRAINVENTE d’un terrain de 638 m² à LanhouarneauPROCHE CENTRE-VILLE – PROCHE DE BRESTÀ vendre sur le littoral et à deux pas de Brest à Lanhouarneau (29430), grand terrain. Réalisez-y la maison de vos rêves. Il bénéficie d’une exposition sud-ouest. Ce terrain est situé non loin du centre-ville. Il y a l’École Primaire Privée Sainte Thérèse à moins de 10 minutes à pied. La nationale N12 est accessible à 10 km. On trouve une bibliothèque, une boulangerie et une épicerie à quelques minutes.Il est à vendre pour la somme de 35 000 €. Contactez Sami ALKIS pour plus d’informations sur ce terrain, sur les modalités de vente et sur les démarches à suivre. Maisons de l’Avenir Guipavas est là pour vous accompagner à toutes les étapes de votre projet.
Lanhouarneau
TERRAIN ET MAISONMaison T5 (102 m²) en vente à LanhouarneauPROCHE CENTRE-VILLE – MAISON 5 PIÈCES NEUVEÀ vendre : localisée à quelques kilomètres de la mer et à 29 km de Brest, proche du centre-ville de Lanhouarneau (29430), nous vous présentons cette maison de 5 pièces de 102 m² et de 638 m² de terrain. Son intérieur dispose de quatre chambres, d’une cuisine et de deux salles de bains.Il s’agit d’une maison de 2 niveaux. Elle est neuve.Il y a l’École Primaire Privée Sainte Thérèse à moins de 10 minutes à pied. La nationale N12 est accessible à 10 km. On trouve une bibliothèque, une boulangerie et une épicerie dans les environs.Elle est proposée à l’achat pour 228 954 €.Contactez notre agence (Sami ALKIS) pour toute question sur la maison ou sur les démarches à suivre. Maisons de l’Avenir Guipavas est là pour vous accompagner dans tous vos projets immobiliers.
L’actualité immobilière à Saint-Méen
27/11/2023
02/11/2023
30/10/2023
20/10/2023
16/10/2023
16/10/2023