Maison à construire à Quiberville (76860)
Images
Description
Maison de 5 pièces (76 m²) à vendre à Quiberville
MAISON 5 PIÈCES NEUVE - PROCHE DE DIEPPE
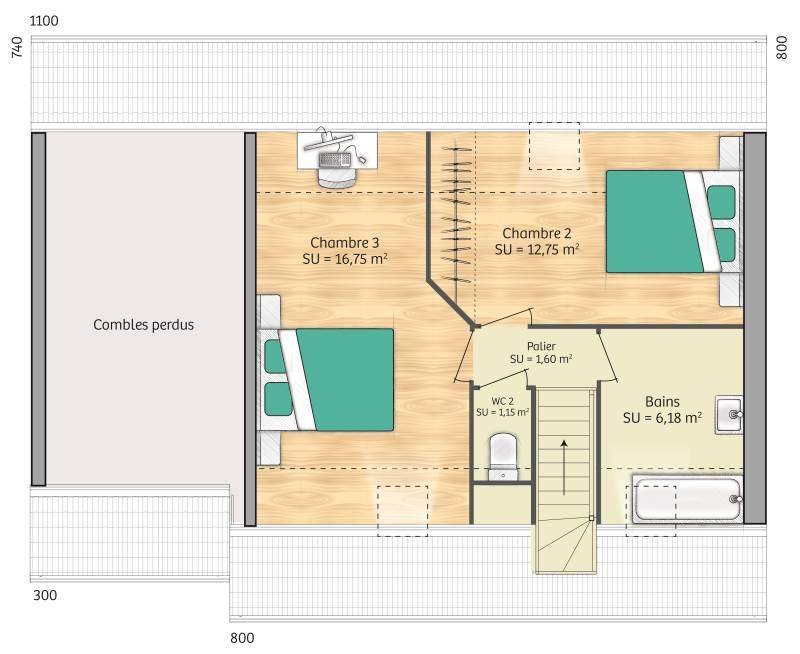
À vendre à 17 km de la Manche et à 12 km de Dieppe, notre agence Maisons France Confort Boos est ravie de vous présenter cette maison de 5 pièces de 76 m² et de 780 m² de terrain à Quiberville (76860). Elle est composée de trois chambres, d'une cuisine et d'une salle de bains.
Cette maison compte 2 niveaux. Elle est neuve.
On trouve une école élémentaire dans le quartier. On trouve un accès à la nationale N27 à 13 km. Il y a une bibliothèque dans les environs.
Son prix de vente est de 205 900 €.
Prenez contact avec Maisons France Confort Boos (Numéro supprimé) / (Numéro supprimé) pour plus d'informations sur cette maison ou sur les modalités de vente. Faites de vos projets immobiliers une réalité avec Maisons France Confort Boos.
Annonce proposée par un Agent Commercial Partenaire.
Logement susceptibles de vous intéresser
Nous vous proposons de découvrir aussi cette sélection de logements situés à moins de 10km de Quiberville et qui seraient susceptibles de vous intéresser.
Varengeville-sur-Mer
TERRAIN ET MAISONNous vous proposons cette maison neuve, baptisée Ménilles, un modèle de résidence qui incarne à la fois l’élégance et la modernité, tout en répondant aux exigences de confort et de basse consommation. Conçue pour s’adapter à vos rêves d’habitat, cette maison de plain-pied offre une surface habitable de 84 m², agencée de manière optimale pour maximiser l’espace et la luminosité.La « Ménilles » se distingue par son architecture soignée, disponible en versions à 2 ou 4 pans, selon vos préférences. Son design est complété par une longue galerie, ajoutant un espace de vie extérieur où vous pourrez profiter des beaux jours, ainsi qu’un garage accolé, assurant praticité et sécurité pour votre véhicule.L’intérieur se compose de quatre pièces bien distribuées, incluant trois chambres confortables, promettant un cocon douillet pour chaque membre de la famille. La maison est conçue pour répondre aux modes de vie contemporains, intégrant des options très prisées telles que des menuiseries en aluminium pour une isolation et une durabilité optimales, ainsi qu’un système de domotique avancé, permettant de contrôler votre maison du bout des doigts pour un confort et une sécurité accrus.La Ménilles est avant tout une maison basse consommation, conçue dans le respect de la norme RE2020. Cette réglementation environnementale garantit une efficacité énergétique supérieure, réduisant considérablement vos factures tout en préservant l’environnement. Sa conception bioclimatique assure une température intérieure agréable tout au long de l’année, pour un bien-être quotidien.Choisir la « Ménilles », c’est opter pour une maison qui allie esthétique, confort et respect de l’environnement, le tout à un prix attractif. Faites de cette maison votre nouveau foyer et personnalisez-la pour qu’elle réponde parfaitement à vos attentes et à votre style de vie. La « Ménilles » est le modèle idéal pour ceux qui rêvent d’une maison moderne, fonctionnelle et éco-responsable.
Varengeville-sur-Mer
TERRAINDécouvrez ce terrain exceptionnel d’une superficie de 1074 m², situé dans la charmante commune de Varengeville-sur-Mer, en Seine-Maritime. Ce bien non viabilisé offre un potentiel immense pour la réalisation de votre projet de construction de maison. Idéalement placé, il saura séduire les acheteurs à la recherche d’un cadre paisible tout en restant à proximité des commodités nécessaires au quotidien. Varengeville-sur-Mer est une petite ville de Normandie reconnue pour sa beauté naturelle et son atmosphère sereine. À proximité, vous pourrez profiter de superbes plages, de sentiers de randonnée offrant des vues imprenables sur la mer, ainsi que de nombreuses attractions locales. Les commodités telles que les arrêts de bus, les commerces, et les infrastructures locales apportent un confort de vie appréciable. Ce terrain se trouve dans une situation idéale, combinant tranquillité et proximité avec les services nécessaires, le tout à deux pas des merveilles de la Côte d’Albâtre. Ne laissez pas passer cette opportunité d’acquérir un terrain au potentiel exceptionnel. Contactez-nous pour explorer toutes les possibilités qu’offre ce bien unique. À noter qu’en tant que constructeur, nous ne sommes pas mandatés pour réaliser la vente de ce terrain.
La Gaillarde
TERRAIN ET MAISONNous vous proposons cette maison neuve, baptisée Ménilles, un modèle de résidence qui incarne à la fois l’élégance et la modernité, tout en répondant aux exigences de confort et de basse consommation. Conçue pour s’adapter à vos rêves d’habitat, cette maison de plain-pied offre une surface habitable de 84 m², agencée de manière optimale pour maximiser l’espace et la luminosité.La « Ménilles » se distingue par son architecture soignée, disponible en versions à 2 ou 4 pans, selon vos préférences. Son design est complété par une longue galerie, ajoutant un espace de vie extérieur où vous pourrez profiter des beaux jours, ainsi qu’un garage accolé, assurant praticité et sécurité pour votre véhicule.L’intérieur se compose de quatre pièces bien distribuées, incluant trois chambres confortables, promettant un cocon douillet pour chaque membre de la famille. La maison est conçue pour répondre aux modes de vie contemporains, intégrant des options très prisées telles que des menuiseries en aluminium pour une isolation et une durabilité optimales, ainsi qu’un système de domotique avancé, permettant de contrôler votre maison du bout des doigts pour un confort et une sécurité accrus.La Ménilles est avant tout une maison basse consommation, conçue dans le respect de la norme RE2020. Cette réglementation environnementale garantit une efficacité énergétique supérieure, réduisant considérablement vos factures tout en préservant l’environnement. Sa conception bioclimatique assure une température intérieure agréable tout au long de l’année, pour un bien-être quotidien.Choisir la « Ménilles », c’est opter pour une maison qui allie esthétique, confort et respect de l’environnement, le tout à un prix attractif. Faites de cette maison votre nouveau foyer et personnalisez-la pour qu’elle réponde parfaitement à vos attentes et à votre style de vie. La « Ménilles » est le modèle idéal pour ceux qui rêvent d’une maison moderne, fonctionnelle et éco-responsable.
La Gaillarde
TERRAINDécouvrez ce magnifique terrain de 913 m² situé à La Gaillarde, une charmante commune du département de Seine-Maritime en Normandie. Ce terrain, actuellement non viabilisé, est l’endroit idéal pour concrétiser votre projet de construction de maison. Profitez d’un cadre champêtre et d’une situation au calme qui vous permettra de créer un chez-vous paisible, tout en étant à proximité des commodités nécessaires à votre quotidien. La Gaillarde se distingue par ses attraits naturels et culturels qui rendent la vie agréable et épanouissante. Cette ville offre un accès facile aux paysages pittoresques de la Normandie tout en étant proche des services essentiels tels que les écoles, commerces, et infrastructures sportives. Que vous soyez amateur de balades en pleine nature ou d’activités en plein air, La Gaillarde saura séduire toutes vos envies. Ne manquez pas cette opportunité d’acheter un terrain ayant un fort potentiel dans un environnement harmonieux ! Ne laissez pas passer cette chance d’acquérir un bien imprégné de possibilités. Contactez-nous pour explorer les diverses options qui s’offrent à vous pour réaliser votre projet de vie. À noter qu’en tant que constructeur, nous ne sommes pas mandatés pour réaliser la vente de ce terrain.
Varengeville-sur-Mer
TERRAIN ET MAISONNous vous proposons cette maison neuve, baptisée « »Barentine » », un modèle de résidence qui allie élégance et fonctionnalité, conçu pour répondre aux attentes des familles modernes. Avec une surface habitable de 115 m², cette maison se distingue par son plan en L, offrant une disposition originale et pratique des espaces de vie.La « »Barentine » » comprend 3 chambres spacieuses, garantissant confort et intimité à chaque membre de la famille. Au total, la maison se compose de 4 pièces, pensées pour maximiser l’espace et la luminosité. L’une des caractéristiques remarquables de ce modèle est son garage intégré, assurant une transition fluide entre l’espace de vie et l’espace de stationnement, tout en offrant un espace de rangement supplémentaire très pratique.La maison dispose également d’une deuxième salle de bains, offrant ainsi une commodité supplémentaire et évitant les embouteillages matinaux. Conforme à la norme RE2020, la « »Barentine » » est une maison basse consommation, conçue avec une attention particulière portée à l’efficacité énergétique et à l’impact environnemental. Cela signifie des factures d’énergie réduites et un confort accru toute l’année pour ses habitants.Les options les plus plébiscitées par nos clients, telles que les menuiseries en aluminium et la domotique, sont disponibles pour personnaliser votre maison selon vos goûts et vos besoins. Ces améliorations non seulement renforcent l’esthétique moderne de la maison, mais améliorent également son efficacité et sa fonctionnalité, rendant la vie quotidienne plus pratique et agréable.Inspirée du charme provençal, la « »Barentine » » présente une architecture cohérente et attrayante. Son design extérieur peut être personnalisé avec un enduit bicolore, ajoutant une touche d’élégance et de distinction. Que vous optiez pour une toiture à 2 ou 4 pans, cette maison vous propose raffinement et confort.Découvrez le plaisir de vivre dans une maison qui allie beauté, confort et durabilité.
Varengeville-sur-Mer
TERRAINDécouvrez ce terrain exceptionnel de 1074 m², idéalement situé à Varengeville-sur-Mer, en Seine-Maritime. Cette parcelle promet de nombreuses possibilités pour un projet de construction de maison. Profitez de l’environnement paisible et calme de cette charmante commune, tout en étant à proximité des commodités essentielles. Ce terrain non viabilisé constitue une toile vierge, parfaite pour réaliser la maison de vos rêves dans un cadre enchanteur. Varengeville-sur-Mer se distingue par ses paysages pittoresques, offrant le plaisir de la nature et la proximité de la mer. Ce village normand est réputé pour sa tranquillité, ses sentiers de randonnée et ses vues imprenables sur la côte. Les commodités locales, y compris des services de proximité et un arrêt de bus à distance de marche, ajoutent à son attrait. Que vous soyez amoureux de la mer ou en quête d’une vie paisible, ce terrain vous place à l’épicentre d’un cadre de vie agréable, tout en bénéficiant des atouts de la région. Ne laissez pas passer cette opportunité unique d’acquérir un terrain au potentiel prometteur. Imaginez votre futur chez-vous dans ce havre de paix à Varengeville-sur-Mer. Contactez-nous dès aujourd’hui pour en discuter?! À noter qu’en tant que constructeur, nous ne sommes pas mandatés pour réaliser la vente de ce terrain.
La Gaillarde
TERRAIN ET MAISONNous vous proposons cette maison neuve, baptisée « »Barentine » », un modèle de résidence qui allie élégance et fonctionnalité, conçu pour répondre aux attentes des familles modernes. Avec une surface habitable de 115 m², cette maison se distingue par son plan en L, offrant une disposition originale et pratique des espaces de vie.La « »Barentine » » comprend 3 chambres spacieuses, garantissant confort et intimité à chaque membre de la famille. Au total, la maison se compose de 4 pièces, pensées pour maximiser l’espace et la luminosité. L’une des caractéristiques remarquables de ce modèle est son garage intégré, assurant une transition fluide entre l’espace de vie et l’espace de stationnement, tout en offrant un espace de rangement supplémentaire très pratique.La maison dispose également d’une deuxième salle de bains, offrant ainsi une commodité supplémentaire et évitant les embouteillages matinaux. Conforme à la norme RE2020, la « »Barentine » » est une maison basse consommation, conçue avec une attention particulière portée à l’efficacité énergétique et à l’impact environnemental. Cela signifie des factures d’énergie réduites et un confort accru toute l’année pour ses habitants.Les options les plus plébiscitées par nos clients, telles que les menuiseries en aluminium et la domotique, sont disponibles pour personnaliser votre maison selon vos goûts et vos besoins. Ces améliorations non seulement renforcent l’esthétique moderne de la maison, mais améliorent également son efficacité et sa fonctionnalité, rendant la vie quotidienne plus pratique et agréable.Inspirée du charme provençal, la « »Barentine » » présente une architecture cohérente et attrayante. Son design extérieur peut être personnalisé avec un enduit bicolore, ajoutant une touche d’élégance et de distinction. Que vous optiez pour une toiture à 2 ou 4 pans, cette maison vous propose raffinement et confort.Découvrez le plaisir de vivre dans une maison qui allie beauté, confort et durabilité.
La Gaillarde
TERRAINDécouvrez ce magnifique terrain à vendre d’une superficie généreuse situé à La Gaillarde, en Seine-Maritime. Ce bien non viabilisé offre un cadre champêtre apaisant, idéal pour accueillir votre projet de construction de maison. Avec ses caractéristiques exceptionnelles, ce terrain constitue une opportunité rare pour réaliser le foyer de vos rêves dans un environnement paisible. La Gaillarde, située en Normandie, se distingue par son ambiance tranquille et conviviale. À proximité, vous pourrez profiter de nombreuses commodités, garantissant un quotidien agréable et pratique. Les attraits locaux, associés à la beauté naturelle de la région, font de ce terrain un choix idéal pour ceux qui recherchent à la fois sérénité et accessibilité. Ne manquez pas cette occasion de bâtir votre havre de paix dans une localisation privilégiée. Ce terrain offre un potentiel incroyable pour votre avenir. N’hésitez pas à nous contacter pour explorer cette opportunité d’achat unique. À noter qu’en tant que constructeur, nous ne sommes pas mandatés pour réaliser la vente de ce terrain.
Offranville
TERRAINTerrain de 1 310 m² en vente à proximité de OffranvillePROCHE DE OFFRANVILLEÀ PROXIMITE DE Offranville (76550) en vente à 7 km de la Manche et à quelques kilomètres de Dieppe, donnez vie à votre résidence principale ou secondaire sur ce terrain de 1 310 m². L’École Élémentaire Eloi Pruvost, l’École Maternelle Jacques Prévert et le Collège Jean Cocteau se trouvent à moins de 10 minutes à pied, tout comme une structure d’accueil pour la petite enfance. Niveau transports en commun, il y a les gares Saint-Aubin-sur-Scie, Dieppe et Longueville-sur-Scie à moins de 10 minutes en voiture. La nationale N27 est accessible à 5 km. On trouve un tennis, des boulangeries, des commerces, un supermarché, une supérette et un bureau de poste à proximité.Il est proposé à l’achat pour 61 950 €. Contactez Natacha LECLERC (tél : (Numéro supprimé)) pour toute question sur le terrain et sur les modalités de vente. Faites de vos projets immobiliers une réalité avec Les Maisons Extraco Dieppe.
L’actualité immobilière à Quiberville
27/11/2023
02/11/2023
30/10/2023
20/10/2023
16/10/2023
16/10/2023